• Наличие
    В наличии
Цена по запросу

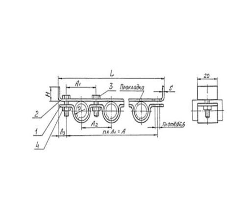
Подвески судовых трубопроводов Тип 7 предназначены для надежного крепления и поддержания трасс трубопроводов на судах и других морских сооружениях. Они обеспечивают стабильность системы, компенсируют вибрации и тепловое расширение, гарантируя долговечную и безопасную эксплуатацию.

Изделия доступны в широком диапазоне масс (от 0,09 до 0,62 кг) и длин (от 106 до 390 мм), что позволяет подобрать оптимальное решение для любого проекта. Статическая нагрузка варьируется от 3 до 10 кН, обеспечивая необходимый запас прочности.

Мы производим подвески из высококачественных марок стали, включая 09Г2С, 10Х17Н13М2Т, 12Х18Н10Т, 12ХМ, 15Х5М, АМг5 и сталь 3, что гарантирует их коррозионную стойкость и надежность в условиях агрессивной морской среды.

Оформите онлайн-заказ или запросите коммерческое предложение для юридических лиц. Доставка по всей Беларуси, безналичный расчет.

Отзывов: 0

Нет отзывов об этом товаре.

Вопросов: 0

Пока нет вопросов об этом товаре. Станьте первым!